Project Expense Update
Over the past year, Highland Christian has been closing out a few outstanding tasks as it relates to the expansion project. In 2023, New Life Church gave permission for the school to pave a small portion of the bus lane (SW corner) on the church property - allowing for creation of the basketball courts. As a result, Highland Christian School received a small sliver of a parcel from New Life Church. This is now being deeded over, a water line was moved, the fence was reinstalled, and other repairs have been completed. We would like to thank New Life Church for their continued support of the mission and families at Highland Christian School.
With the completion of these additional projects, the final cost for the expansion project is $5,592,641 an increase of $100,428.17 from what was originally reported, and the project is officially closed. Highland Christian School continues to be blessed by a tremendous community of supporters. As of December 2024, the current balance on our loan is $2,400,000 - with a pledge balance of $293,599. Thank you for your continued support, as we partner together to impact the world for Christ.
Funding Update
Thanks to your generosity, we are pleased to report that our debt balance is $2.4M!  We give glory to God and great thanks to each of you who have given so generously to advance God's purposes at Highland Christian School. Because of you we continue to provide extraordinary Christ-centered education for the kids in our community! All praise be to God!
100% OF YOUR GIFTS ARE BEING APPLIED TO PRINCIPAL. Our terms for repayment provided for interest only payments until August 2025. Gifts given ahead of this date will greatly reduce the impact of these payments on future budgets and saves on interest in the long run!
(Loan balance is as of 11/30/2024)
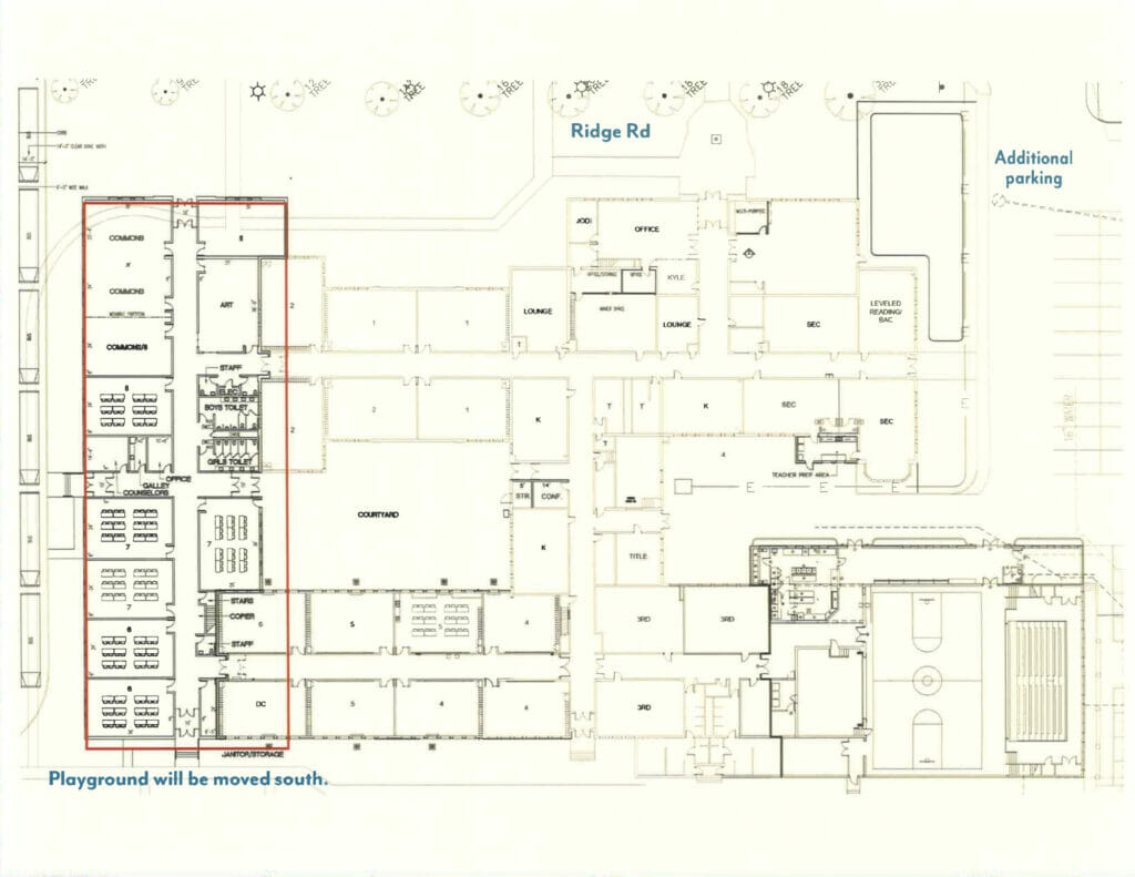
Watch us Grow!
All photos are compliments of Lagestee-Mulder Inc.
Expansion Plan Approved!
Highland Christian School is pleased to announce that the 2023 Expansion Plan was unanimously approved on May 2, 2022 at our Annual Society Meeting! We are grateful for this opportunity to grow our facility and in so doing increase the effectiveness of our programs and the scope of services we provide for students in northwest Indiana.  Thank you for your support!
At this point, we’re looking to identify individual and corporate partners who are willing to lead the way with a 5-year pledge before we break ground. We have worked with multiple constituent vendors to bid this project and have confirmed that our expansion expenses will be between $4 and $5 million dollars. Our goal is to pay this debt down in 7 years, or sooner if possible.  We’ve identified $2.6 million in budgeted resources and anticipate surplus income over the next 7 years that will be allocated to these expenses.  In addition, gift revenue from our annual School Improvement Appeal will be allocated to these expenses until the debt is paid.



















